Interior of the Haarlem Primary School by Serge Schoemaker Architects

Basisschool Haarlem

De Haarlemse basisschool Piramide Boerhaave heeft een metamorfose ondergaan. Met enkele strategisch gekozen architectonische ingrepen kreeg de school uit de jaren zestig een volledig nieuwe uitstraling: meer licht, lucht en ruimte. Het renovatieproject laat zien dat de verbouwing van wederopbouwscholen een volwaardig alternatief kan zijn voor sloop en nieuwbouw.

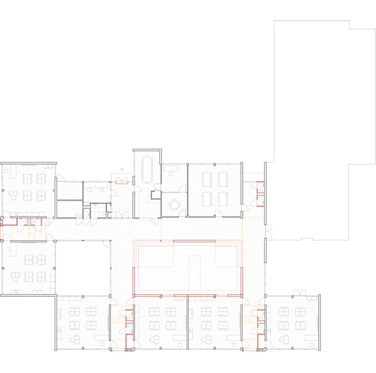
De basisschool maakt deel uit van een karakteristieke groenstrook in Schalkwijk. Het hoofdgebouw werd in 1964 gebouwd als lagere school; in 1967 volgden een gymzaal en een kleuterschool. Dankzij de heldere plattegrond en de semi-gestandaardiseerde bouwconstructie was de school een voorloper van de reeks patio­scholen uit de jaren zestig.

Lees verder

De Haarlemse basisschool Piramide Boerhaave heeft een metamorfose ondergaan. Met enkele strategisch gekozen architectonische ingrepen kreeg de school uit de jaren zestig een volledig nieuwe uitstraling: meer licht, lucht en ruimte. Het renovatieproject laat zien dat de verbouwing van wederopbouwscholen een volwaardig alternatief kan zijn voor sloop en nieuwbouw.

De basisschool maakt deel uit van een karakteristieke groenstrook in Schalkwijk. Het hoofdgebouw werd in 1964 gebouwd als lagere school; in 1967 volgden een gymzaal en een kleuterschool. Dankzij de heldere plattegrond en de semi-gestandaardiseerde bouwconstructie was de school een voorloper van de reeks patio­scholen uit de jaren zestig.

Toch was de school dringend toe aan een nieuwe start en een opener uitstraling naar buiten. Het introverte gebouw was verouderd, de architectuur en kleurstelling gedateerd. De multiculturele school stond bekend als probleemschool, met een teruglopend leerlingaantal. De geroemde patio’s raakten verwaarloosd en bleven onbenut. Onderwijskundig was er bovendien behoefte aan meer ruimte voor speciaal onderwijs, groepsactiviteiten en vieringen.

In 2015 kreeg Serge Schoemaker Architects de opdracht om de basisschool te renoveren en uit te breiden, na een ontwerpend onderzoek in opdracht van Stichting Mevrouw Meijer. Dat onderzoek wees uit dat renovatie – tegen lagere kosten dan sloop en nieuwbouw – een toekomstbestendig resultaat kon opleveren. De klaslokalen van wederopbouwscholen zijn ruim en licht, wat deze gebouwen bij uitstek geschikt maakt voor renovatie.

Het ontwerp voor de renovatie en uitbreiding grijpt terug op de oorspronkelijke heldere gangenstructuur, die als leidraad diende voor de uitbreiding. De gangeinden, die voorheen eindigden in toiletgroepen, zijn opengebroken, waardoor zichtlijnen naar de omgeving zijn ontstaan. Grote limoengroene raamkozijnen markeren nu de gangeinden, zowel van binnen als van buiten, en maken deel uit van een volledig nieuw kleurpalet.

De grootste patio is overdekt en getransformeerd tot multifunctionele aula. Verticale dakramen in het nieuwe dak laten daglicht van verschillende kanten binnenstromen, zonder hinderlijk direct zonlicht. In de op maat gemaakte zitelementen van berkenmultiplex, die de aula omzomen, zijn opbergvakken geïntegreerd. De zorgvuldig vormgegeven, halfopen zaal creëert een nieuwe ruimtelijkheid in de school en biedt plek voor groepsactiviteiten en vieringen – voor educatie én cultuur.

Locatie

Haarlem, Nederland

Jaar

2015-2016

Status

Opgeleverd

Opdrachtgever

Stichting Spaarnesant

Projectteam

Serge Schoemaker, Sanne Knoll | Alexander Beeloo, Roxana Vakil Mozafari

Fotografie

Max Hart Nibbrig

Interior of the Haarlem Primary School by Serge Schoemaker Architects
Interior of the Haarlem Primary School by Serge Schoemaker Architects
Interior of the Haarlem Primary School by Serge Schoemaker Architects
Interior of the Haarlem Primary School by Serge Schoemaker Architects
Isometric drawing of the Haarlem Primary School by Serge Schoemaker Architects
Interior of the Haarlem Primary School by Serge Schoemaker Architects
Interior of the Haarlem Primary School by Serge Schoemaker Architects
Locatie

Haarlem, Nederland

Jaar

2015-2016

Status

Opgeleverd

Opdrachtgever

Stichting Spaarnesant

Projectteam

Serge Schoemaker, Sanne Knoll | Alexander Beeloo, Roxana Vakil Mozafari

Fotografie

Max Hart Nibbrig