Ede Medical Practice

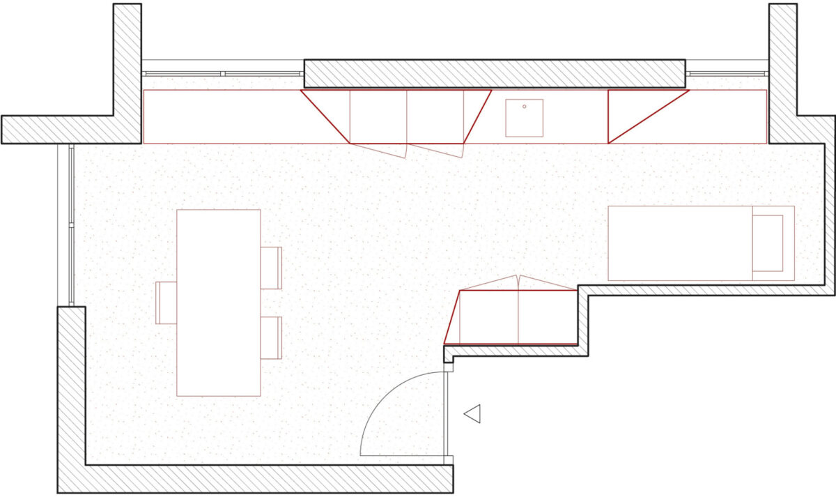
We designed this modern and spacious interior for the new medical practice of general practitioner Orbay Cihanbeyli in Ede. The office of the previous occupant — whose practice Cihanbeyli took over — was cluttered with furniture and lacked both space and natural light. In response, we developed a spatially efficient concept that integrates all required functions, provides privacy, and maximizes openness.

A full-height wall unit, almost seven metres long, now runs along the longest wall of the practice. Made of birch plywood, this custom-designed element combines seating, storage, drawers for medical equipment, and a kitchenette into one continuous piece of furniture. Three large, angled openings punctuate the unit, giving it a sculptural quality. The two largest openings, fitted with built-in window seats, are positioned in front of the existing windows, allowing daylight to stream in from behind. Integrated translucent blinds filter sunlight and ensure privacy when needed, while a third opening accommodates the kitchenette.

Read more

We designed this modern and spacious interior for the new medical practice of general practitioner Orbay Cihanbeyli in Ede. The office of the previous occupant — whose practice Cihanbeyli took over — was cluttered with furniture and lacked both space and natural light. In response, we developed a spatially efficient concept that integrates all required functions, provides privacy, and maximizes openness.

A full-height wall unit, almost seven metres long, now runs along the longest wall of the practice. Made of birch plywood, this custom-designed element combines seating, storage, drawers for medical equipment, and a kitchenette into one continuous piece of furniture. Three large, angled openings punctuate the unit, giving it a sculptural quality. The two largest openings, fitted with built-in window seats, are positioned in front of the existing windows, allowing daylight to stream in from behind. Integrated translucent blinds filter sunlight and ensure privacy when needed, while a third opening accommodates the kitchenette.

With all handles seamlessly integrated into the joinery, the flush surfaces emphasize the unit’s clean, minimalist lines. To maintain a bright and calm atmosphere, the walls were painted white and the floor finished in a durable loam-coloured coating. The new custom-made tables and drawer units, crafted from the same light birch plywood, complement the cabinetry — together creating a unified, serene interior that reflects the clarity and care of a contemporary medical practice.

Location

Ede, Netherlands

Year

2011-2012

Status

Completed

Client

Huisartsenpraktijk Cihanbeyli

Project team

Serge Schoemaker, Kevin Veenhuizen

Photography

Raoul Kramer

Location

Ede, Netherlands

Year

2011-2012

Status

Completed

Client

Huisartsenpraktijk Cihanbeyli

Project team

Serge Schoemaker, Kevin Veenhuizen

Photography

Raoul Kramer