Exterior of the Amsterdam Canal House by Serge Schoemaker Architects

Amsterdam Canal House

Situated in the heart of the city, this seventeenth-century corner house offers views of two Amsterdam canals. At the request of the owners, the national monument has been modernized and made more sustainable. Serge Schoemaker Architects transformed the five-floor home into a visual composition that fully enhances the historical qualities of this remarkable building.

Frequently renovated over the years, the interior of the residence had acquired a cluttered and eclectic character. Structural sagging and the tapered volume had left the house with sloping floors, walls, and windows. Moreover, the floor area was relatively small by current standards. The redevelopment therefore required customized solutions that emphasize light, air, and space.

Read more

Situated in the heart of the city, this seventeenth-century corner house offers views of two Amsterdam canals. At the request of the owners, the national monument has been modernized and made more sustainable. Serge Schoemaker Architects transformed the five-floor home into a visual composition that fully enhances the historical qualities of this remarkable building.

Frequently renovated over the years, the interior of the residence had acquired a cluttered and eclectic character. Structural sagging and the tapered volume had left the house with sloping floors, walls, and windows. Moreover, the floor area was relatively small by current standards. The redevelopment therefore required customized solutions that emphasize light, air, and space.

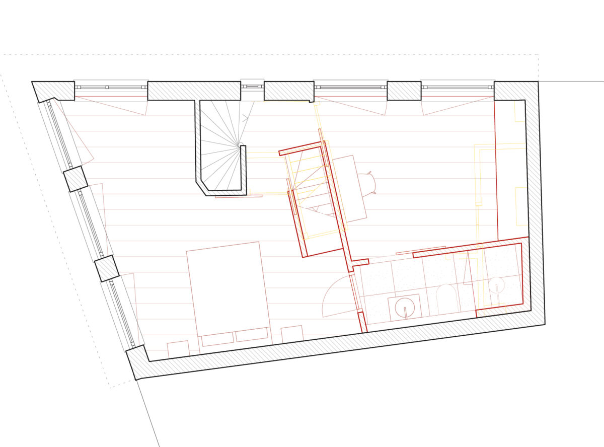
The vision to make the new interior as spacious as possible involved creating an open floor plan, space-saving sliding doors, efficient staircases, and slender balustrades on every floor. The attic level beneath the mansard roof was completely stripped and redesigned with an open staircase and a transparent bathroom.

This new spaciousness accentuates the existing timber beams and trusses, as well as the floor-to-ceiling windows with glazing bars that frame views of the vibrant city. White floors and walls draw daylight deep into the home. Customized staircases and furniture create warm touches and highlight contrasts.

Details, materials, and colours are repeated consistently on all floors of the house, resulting in a visual unity in which new additions complement existing elements. The stone-like floor and wall finishes in the modern ground-floor kitchen hark back to the seventeenth century. The same concept informed the new balustrades and banisters that echo traditional ironwork.

Traditionally crafted waterproof lime plasterwork gives the kitchen and bathrooms a refined appearance. The special qualities of the plasterwork on the rear kitchen wall—relatively tall due to the split-level floor—enhance the new domestic atmosphere. The deep-blue wall appears almost like a vast painting as one enters the house.

Location

Amsterdam, Netherlands

Year

2019-2021

Status

Completed

Client

Private

Project team

Serge Schoemaker, Maiara Camilotti, Farimah Chaman Zadeh, et al.

Photography

Max Hart Nibbrig

Interior of the Amsterdam Canal House by Serge Schoemaker Architects
Floor plan of the Amsterdam Canal House by Serge Schoemaker Architects
Isometric drawing of the Amsterdam Canal House by Serge Schoemaker Architects
Interior of the Amsterdam Canal House by Serge Schoemaker Architects
Interior of the Amsterdam Canal House by Serge Schoemaker Architects
Floor plan of the Amsterdam Canal House by Serge Schoemaker Architects
Interior of the Amsterdam Canal House by Serge Schoemaker Architects
Interior of the Amsterdam Canal House by Serge Schoemaker Architects
Interior of the Amsterdam Canal House by Serge Schoemaker Architects
Interior of the Amsterdam Canal House by Serge Schoemaker Architects
Interior of the Amsterdam Canal House by Serge Schoemaker Architects
Floor plan of the Amsterdam Canal House by Serge Schoemaker Architects
Location

Amsterdam, Netherlands

Year

2019-2021

Status

Completed

Client

Private

Project team

Serge Schoemaker, Maiara Camilotti, Farimah Chaman Zadeh, et al.

Photography

Max Hart Nibbrig